
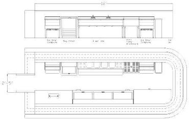
One of the most important features of any foodservice facility is the unimpeded flow of traffic throughout its space. Having a plan, or preliminary design, is key in purchasing the proper equipment and installing it in the best possible way.


As a full-service company with access to AutoQuotes Designer 2019, Ace Refrigeration Engineering will work directly with business owners and architects. This includes assistance with integrating new and existing equipment, creating seating arrangements, kitchen and prep area layout, a hood ventilation plan, and more. Additionally, we can produce a utility/equipment schedule for engineers, electricians, plumbers, HVAC contractors, and the like. This preplanning service cuts down on change orders, saving clients both time and money, not to mention major headaches. Rates depend on the scope of the project—please contact us for more details.



Please give us a call at 712-258-0179 or stop into our 25,000 square foot showroom at 2121 Floyd Boulevard in Sioux City to see our complete inventory!
2121 Floyd Boulevard, Sioux City, Iowa 51104, United States
Open today | 08:00 am – 04:00 pm |

We use cookies to analyze website traffic and optimize your website experience. By accepting our use of cookies, your data will be aggregated with all other user data.